Назад

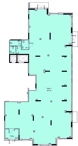
Коммерция-1, 391.93м²

Планировка
На этаже
На генплане
Вид из окна

60 553 000 ₽

ЖК «Ближе» Забронировать Записаться на консультацию

Этаж

1 из 16

Номер помещения

1

Общая площадь

391.93 м²

Особенности проекта

Развитая инфраструктура
Комфортная стоимость
Отделка «под ключ»
Красота и безопасность
Технические детали
Развитая инфраструктура

Развитая инфраструктура

Кондратово — один из самых динамично развивающихся пригородов Перми. Отличная транспортная доступность и развитая инфраструктура в сочетании с тишиной и спокойствием — главная особенность локации. Здесь есть всё, что нужно для комфортной жизни: Дом спорта «Красава», магазины, аптеки, кафе, детский сад. Совсем скоро будут сданы новая школа и поликлиника.

На машине до центра Перми — около получаса. Сюда регулярно ходит общественный транспорт, а автобусная остановка расположена в 400 м от ЖК «Ближе».

Комфорт — ещё «БЛИЖЕ»!

Выбрать квартиру
Комфортная стоимость

Комфортная стоимость

Ипотека, рассрочка и даже trade-in — мы делаем всё, чтобы Вы поскорее смогли приобрести квартиру Вашей мечты на выгодных условиях!

Новоселье — ещё «БЛИЖЕ»!

Выбрать квартиру
Отделка «под ключ»

Отделка «под ключ»

К моменту Вашего заселения всё уже будет сделано: металлические входные и ламинированные межкомнатные двери, качественный линолеум и обои приятных оттенков. В ванных комнатах и совмещённых санузлах на полу и стенах — керамическая плитка. Будет установлена вся сантехника и мойки.

Мечта — ещё «БЛИЖЕ»!

Выбрать квартиру
Красота и безопасность

Красота и безопасность

Дизайнерские холлы в ЖК «Ближе» — это продуманный подход к комфорту и высокая эстетика. Безбарьерный вход в подъезд будет удобен для всех. Входная группа с витражным остеклением — это не только стильно, но и безопасно: всегда видно, что происходит внутри и снаружи. А для дополнительной безопасности в ЖК предусмотрена комната консьержа.

Выбрать квартиру
Технические детали

Технические детали

Три дома в ЖК

Конструктив: Монолитно-каркасный
Количество этажей в каждом доме: 16
Количество квартир в каждом доме: 224
Высота потолков: 1-й этаж - 3,3 м, типовой этаж - 2,54 м

Выбрать квартиру

Ипотечный калькулятор

Заказать консультацию

Приведенные расчеты носят предварительный характер. Окончательный расчет суммы кредита и размер ежемесячного платежа производятся банком после предоставления полного комплекта документов и проведения оценки платежеспособности клиента.

Все
Семейная
IT-Ипотека
Для всех

ДОМ.рф (Семейная ипотека)

Ставка

Налоговый вычет
Налоговый вычет при ипотеке состоит из двух частей:
260 000 ₽ — 13% от стоимости жилья
390 000 ₽ — 13% от суммы процентов по ипотеке
Итого: 650 000 ₽

6 %

Платеж
308 589 ₽/мес

Условия кредитования

Ставка

6 %

Срок кредита

до 25 лет

Первый взнос

от 20 %

Описание программы

Ваш персональный менеджер по новостройкам ПЗСП:
Евгения Марамзина, телефон 8 (912) 494 13 16, почта evgeniia.maramzina@domrf.ru
Адрес офиса банка: 614000, Россия, Пермь, ул. Сибирская, д.46
Сайт банка: https://domrfbank.ru/

 

АБ РОССИЯ (семейная ипотека)

Ставка

Налоговый вычет
Налоговый вычет при ипотеке состоит из двух частей:
260 000 ₽ — 13% от стоимости жилья
390 000 ₽ — 13% от суммы процентов по ипотеке
Итого: 650 000 ₽

5.8 %

Платеж
302 002 ₽/мес

Условия кредитования

Ставка

5.8 %

Срок кредита

до 25 лет

Первый взнос

от 30.01 %

Описание программы

614990, Пермский край, г. Пермь, ул. Петропавловская, 54
тел. (342) 235-15-05

Металлинвестбанк (семейная ипотека)

Ставка

Налоговый вычет
Налоговый вычет при ипотеке состоит из двух частей:
260 000 ₽ — 13% от стоимости жилья
390 000 ₽ — 13% от суммы процентов по ипотеке
Итого: 650 000 ₽

5.9 %

Платеж
305 288 ₽/мес

Условия кредитования

Ставка

5.9 %

Срок кредита

до 30 лет

Первый взнос

от 20.01 %

Описание программы

Адрес: 614015 г. Пермь, ул. Ленина, 96.
Телефон: (342) 211-50-19

Ваш персональный менеджер Соколова Гульфия Амировна тел. +7 (982) 456-65-57, почта gsokolova@metib.ru

Металлинвестбанк (IT ипотека)

Ставка

Налоговый вычет
Налоговый вычет при ипотеке состоит из двух частей:
260 000 ₽ — 13% от стоимости жилья
390 000 ₽ — 13% от суммы процентов по ипотеке
Итого: 650 000 ₽

5.99 %

Платеж
308 258 ₽/мес

Условия кредитования

Ставка

5.99 %

Срок кредита

до 30 лет

Первый взнос

от 20.01 %

Описание программы

Адрес: 614015 г. Пермь, ул. Ленина, 96.
Телефон: (342) 211-50-19

Ваш персональный менеджер Соколова Гульфия Амировна тел. +7 (982) 456-65-57, почта gsokolova@metib.ru

Металлинвестбанк

Ставка

Налоговый вычет
Налоговый вычет при ипотеке состоит из двух частей:
260 000 ₽ — 13% от стоимости жилья
390 000 ₽ — 13% от суммы процентов по ипотеке
Итого: 650 000 ₽

27.2 %

Платеж
1 167 020 ₽/мес

Условия кредитования

Ставка

27.2 %

Срок кредита

до 30 лет

Первый взнос

от 15.01 %

Описание программы

Адрес: 614015 г. Пермь, ул. Ленина, 96.
Телефон: (342) 211-50-19

Ваш персональный менеджер Соколова Гульфия Амировна тел. +7 (982) 456-65-57, почта gsokolova@metib.ru

ПСБ - Промсвязьбанк

Ставка

Налоговый вычет
Налоговый вычет при ипотеке состоит из двух частей:
260 000 ₽ — 13% от стоимости жилья
390 000 ₽ — 13% от суммы процентов по ипотеке
Итого: 650 000 ₽

25.6 %

Платеж
1 098 578 ₽/мес

Условия кредитования

Ставка

25.6 %

Срок кредита

до 30 лет

Первый взнос

от 40.01 %

Описание программы

Офис банка в Перми: ТРЦ Колизей: г. Пермь, ул Ленина, 58, телефоны +7 (495) 787 33 33, 8 800 333 03 03
Ваш менеджер г. Пермь: Наталья Фисун  +7 (908) 2444144, Светлана Онучина  +7(992) 2243770.

Льготная ипотека 6,35% 
Семейная ипотека 5%
Ипотека для ИТ-специалистов 5%

не оферта

ПСБ - Промсвязьбанк (семейная ипотека)

Ставка

Налоговый вычет
Налоговый вычет при ипотеке состоит из двух частей:
260 000 ₽ — 13% от стоимости жилья
390 000 ₽ — 13% от суммы процентов по ипотеке
Итого: 650 000 ₽

5.9 %

Платеж
305 288 ₽/мес

Условия кредитования

Ставка

5.9 %

Срок кредита

до 30 лет

Первый взнос

от 30.01 %

Описание программы

Офис банка в Перми: ТРЦ Колизей: г. Пермь, ул Ленина, 58, телефоны +7 (495) 787 33 33, 8 800 333 03 03
Ваш менеджер г. Пермь: Наталья Фисун  +7 (908) 2444144, Светлана Онучина  +7(992) 2243770.

Льготная ипотека 6,35% 
Семейная ипотека 5%
Ипотека для ИТ-специалистов 5%

не оферта

ПСБ - Промсвязьбанк (IT ипотека)

Ставка

Налоговый вычет
Налоговый вычет при ипотеке состоит из двух частей:
260 000 ₽ — 13% от стоимости жилья
390 000 ₽ — 13% от суммы процентов по ипотеке
Итого: 650 000 ₽

6 %

Платеж
308 589 ₽/мес

Условия кредитования

Ставка

6 %

Срок кредита

до 30 лет

Первый взнос

от 20 %

Описание программы

Офис банка в Перми: ТРЦ Колизей: г. Пермь, ул Ленина, 58, телефоны +7 (495) 787 33 33, 8 800 333 03 03
Ваш менеджер г. Пермь: Наталья Фисун  +7 (908) 2444144, Светлана Онучина  +7(992) 2243770.

Льготная ипотека 6,35% 
Семейная ипотека 5%
Ипотека для ИТ-специалистов 5%

не оферта

ВТБ БАНК

Ставка

Налоговый вычет
Налоговый вычет при ипотеке состоит из двух частей:
260 000 ₽ — 13% от стоимости жилья
390 000 ₽ — 13% от суммы процентов по ипотеке
Итого: 650 000 ₽

28.8 %

Платеж
1 235 523 ₽/мес

Условия кредитования

Ставка

28.8 %

Срок кредита

до 30 лет

Первый взнос

от 30.01 %

Описание программы

Спешим поделиться радостной НОВОСТЬЮ от Банка ВТБ!

Мы снижаем  % ставки по ипотеке с ГОС.ПОДДЕРЖКОЙ!!!

Срок действия: с 19.07.2023 по 15.09.2023 года

Колл-центр: 8 800 100-24-24, почта для заявок и вопросов: i_perm@vtb.ru


ВТБ БАНК (IT ипотека)

Ставка

Налоговый вычет
Налоговый вычет при ипотеке состоит из двух частей:
260 000 ₽ — 13% от стоимости жилья
390 000 ₽ — 13% от суммы процентов по ипотеке
Итого: 650 000 ₽

6 %

Платеж
308 589 ₽/мес

Условия кредитования

Ставка

6 %

Срок кредита

до 30 лет

Первый взнос

от 20.01 %

Описание программы

Спешим поделиться радостной НОВОСТЬЮ от Банка ВТБ!

Мы снижаем  % ставки по ипотеке с ГОС.ПОДДЕРЖКОЙ!!!

Срок действия: с 19.07.2023 по 15.09.2023 года

Колл-центр: 8 800 100-24-24, почта для заявок и вопросов: i_perm@vtb.ru


ВТБ БАНК (Семейная ипотека)

Ставка

Налоговый вычет
Налоговый вычет при ипотеке состоит из двух частей:
260 000 ₽ — 13% от стоимости жилья
390 000 ₽ — 13% от суммы процентов по ипотеке
Итого: 650 000 ₽

6 %

Платеж
308 589 ₽/мес

Условия кредитования

Ставка

6 %

Срок кредита

до 30 лет

Первый взнос

от 20.01 %

Описание программы

Спешим поделиться радостной НОВОСТЬЮ от Банка ВТБ!

Мы снижаем  % ставки по ипотеке с ГОС.ПОДДЕРЖКОЙ!!!

Срок действия: с 19.07.2023 по 15.09.2023 года

Колл-центр: 8 800 100-24-24, почта для заявок и вопросов: i_perm@vtb.ru


Клюква (семейная ипотека)

Ставка

Налоговый вычет
Налоговый вычет при ипотеке состоит из двух частей:
260 000 ₽ — 13% от стоимости жилья
390 000 ₽ — 13% от суммы процентов по ипотеке
Итого: 650 000 ₽

6 %

Платеж
308 589 ₽/мес

Условия кредитования

Ставка

6 %

Срок кредита

до 25 лет

Первый взнос

от 20.01 %

Описание программы

Пермь, ул. Ленина 72а, контакт-центр 8 800 100 10 40

(342)207-58-21
(342)207-58-18
(342)207-58-28
(342)207-58-22

Сумма – до 6 млн
Первоначальный взнос – от 15%
Срок – до 25 лет

Клюква (IT ипотека)

Ставка

Налоговый вычет
Налоговый вычет при ипотеке состоит из двух частей:
260 000 ₽ — 13% от стоимости жилья
390 000 ₽ — 13% от суммы процентов по ипотеке
Итого: 650 000 ₽

6 %

Платеж
308 589 ₽/мес

Условия кредитования

Ставка

6 %

Срок кредита

до 25 лет

Первый взнос

от 20.01 %

Описание программы

Пермь, ул. Ленина 72а, контакт-центр 8 800 100 10 40

(342)207-58-21
(342)207-58-18
(342)207-58-28
(342)207-58-22

Сумма – до 6 млн
Первоначальный взнос – от 15%
Срок – до 25 лет

Сбербанк (Семейная ипотека)

Ставка

Налоговый вычет
Налоговый вычет при ипотеке состоит из двух частей:
260 000 ₽ — 13% от стоимости жилья
390 000 ₽ — 13% от суммы процентов по ипотеке
Итого: 650 000 ₽

6 %

Платеж
308 589 ₽/мес

Условия кредитования

Ставка

6 %

Срок кредита

до 25 лет

Первый взнос

от 20.1 %

Описание программы

Ваш персональный менеджер -  Анна Ковалёва  8(919) 4538822   Kovaleva.A.Serge@sberbank.ru  старший менеджер по продаже жилищных кредитов

Она поможет Вам подобрать выгодные условия кредитования и оформить ипотечную заявку. Отправьте заявку на ипотеку онлайн: https://www.sberbank.ru/ru/person/credits/homenew




Клюква

Ставка

Налоговый вычет
Налоговый вычет при ипотеке состоит из двух частей:
260 000 ₽ — 13% от стоимости жилья
390 000 ₽ — 13% от суммы процентов по ипотеке
Итого: 650 000 ₽

29 %

Платеж
1 244 089 ₽/мес

Условия кредитования

Ставка

29 %

Срок кредита

до 25 лет

Первый взнос

от 30.01 %

Описание программы

Пермь, ул. Ленина 72а, контакт-центр 8 800 100 10 40

(342)207-58-21
(342)207-58-18
(342)207-58-28
(342)207-58-22

Сумма – до 6 млн
Первоначальный взнос – от 15%
Срок – до 25 лет

Сбербанк

Ставка

Налоговый вычет
Налоговый вычет при ипотеке состоит из двух частей:
260 000 ₽ — 13% от стоимости жилья
390 000 ₽ — 13% от суммы процентов по ипотеке
Итого: 650 000 ₽

30.7 %

Платеж
1 316 923 ₽/мес

Условия кредитования

Ставка

30.7 %

Срок кредита

до 30 лет

Первый взнос

от 15.01 %

Описание программы

Ваш персональный менеджер -  Анна Ковалёва  8(919) 4538822   Kovaleva.A.Serge@sberbank.ru  старший менеджер по продаже жилищных кредитов

Она поможет Вам подобрать выгодные условия кредитования и оформить ипотечную заявку. Отправьте заявку на ипотеку онлайн: https://www.sberbank.ru/ru/person/credits/homenew




Совкомбанк (IT ипотека)

Ставка

Налоговый вычет
Налоговый вычет при ипотеке состоит из двух частей:
260 000 ₽ — 13% от стоимости жилья
390 000 ₽ — 13% от суммы процентов по ипотеке
Итого: 650 000 ₽

6 %

Платеж
308 589 ₽/мес

Условия кредитования

Ставка

6 %

Срок кредита

до 30 лет

Первый взнос

от 20.01 %

Описание программы

ПАО "Совкомбанк"  г. Пермь ул Ленина 59
Ваш персональный кредитный менеджер:
Микрюков Иван +79124876549
mikryukovim@sovcombank.ru


 * Возможно рассмотрение по двум документам
 * Ипотечное кредитование самозянятых и ИП - без предоставления налоговых деклараций, достаточно выписки с дебетовой карты или расчетного счета за 6 месяцев
* Ипотечное кредитование до 85 лет при наличии созаемщика не страше 70 лет,пенсия , как единственный источник дохода у клиента при сумме свыше 15 т.р.

Совкомбанк (семейная ипотека)

Ставка

Налоговый вычет
Налоговый вычет при ипотеке состоит из двух частей:
260 000 ₽ — 13% от стоимости жилья
390 000 ₽ — 13% от суммы процентов по ипотеке
Итого: 650 000 ₽

5.99 %

Платеж
308 258 ₽/мес

Условия кредитования

Ставка

5.99 %

Срок кредита

до 30 лет

Первый взнос

от 20.01 %

Описание программы

ПАО "Совкомбанк"  г. Пермь ул Ленина 59
Ваш персональный кредитный менеджер:
Микрюков Иван +79124876549
mikryukovim@sovcombank.ru


 * Возможно рассмотрение по двум документам
 * Ипотечное кредитование самозянятых и ИП - без предоставления налоговых деклараций, достаточно выписки с дебетовой карты или расчетного счета за 6 месяцев
* Ипотечное кредитование до 85 лет при наличии созаемщика не страше 70 лет,пенсия , как единственный источник дохода у клиента при сумме свыше 15 т.р.

Совкомбанк

Ставка

Налоговый вычет
Налоговый вычет при ипотеке состоит из двух частей:
260 000 ₽ — 13% от стоимости жилья
390 000 ₽ — 13% от суммы процентов по ипотеке
Итого: 650 000 ₽

14.99 %

Платеж
650 398 ₽/мес

Условия кредитования

Ставка

14.99 %

Срок кредита

до 30 лет

Первый взнос

от 50.01 %

Описание программы

ПАО "Совкомбанк"  г. Пермь ул Ленина 59
Ваш персональный кредитный менеджер:
Микрюков Иван +79124876549
mikryukovim@sovcombank.ru


 * Возможно рассмотрение по двум документам
 * Ипотечное кредитование самозянятых и ИП - без предоставления налоговых деклараций, достаточно выписки с дебетовой карты или расчетного счета за 6 месяцев
* Ипотечное кредитование до 85 лет при наличии созаемщика не страше 70 лет,пенсия , как единственный источник дохода у клиента при сумме свыше 15 т.р.

Альфа-Банк (IT ипотека)

Ставка

Налоговый вычет
Налоговый вычет при ипотеке состоит из двух частей:
260 000 ₽ — 13% от стоимости жилья
390 000 ₽ — 13% от суммы процентов по ипотеке
Итого: 650 000 ₽

6 %

Платеж
308 589 ₽/мес

Условия кредитования

Ставка

6 %

Срок кредита

до 30 лет

Первый взнос

от 30 %

Описание программы

Центр ипотечного кредитования в г. Пермь, ул. Пермская, 17
Менеджер по работе с партнерами Дубровин Дмитрий 8-909-730-64-40

Отправьте заявку на ипотеку онлайн: https://alfabank.ru/get-money/mortgage/
Не оферта.

Альфа-Банк (семейная ипотека)

Ставка

Налоговый вычет
Налоговый вычет при ипотеке состоит из двух частей:
260 000 ₽ — 13% от стоимости жилья
390 000 ₽ — 13% от суммы процентов по ипотеке
Итого: 650 000 ₽

6 %

Платеж
308 589 ₽/мес

Условия кредитования

Ставка

6 %

Срок кредита

до 30 лет

Первый взнос

от 30 %

Описание программы

Центр ипотечного кредитования в г. Пермь, ул. Пермская, 17
Менеджер по работе с партнерами Дубровин Дмитрий 8-909-730-64-40

Отправьте заявку на ипотеку онлайн: https://alfabank.ru/get-money/mortgage/
Не оферта.

Альфа-Банк

Ставка

Налоговый вычет
Налоговый вычет при ипотеке состоит из двух частей:
260 000 ₽ — 13% от стоимости жилья
390 000 ₽ — 13% от суммы процентов по ипотеке
Итого: 650 000 ₽

29.49 %

Платеж
1 265 079 ₽/мес

Условия кредитования

Ставка

29.49 %

Срок кредита

до 30 лет

Первый взнос

от 50 %

Описание программы

Центр ипотечного кредитования в г. Пермь, ул. Пермская, 17
Менеджер по работе с партнерами Дубровин Дмитрий 8-909-730-64-40

Отправьте заявку на ипотеку онлайн: https://alfabank.ru/get-money/mortgage/
Не оферта.

ДОМ.рф (Семейная ипотека)

Ставка

6 %

Платеж
308 589 ₽/мес

Условия кредитования

Ставка

6 %

Срок кредита

до 25 лет

Первый взнос

от 20 %

Описание программы

Ваш персональный менеджер по новостройкам ПЗСП:
Евгения Марамзина, телефон 8 (912) 494 13 16, почта evgeniia.maramzina@domrf.ru
Адрес офиса банка: 614000, Россия, Пермь, ул. Сибирская, д.46
Сайт банка: https://domrfbank.ru/

 

АБ РОССИЯ (семейная ипотека)

Ставка

5.8 %

Платеж
302 002 ₽/мес

Условия кредитования

Ставка

5.8 %

Срок кредита

до 25 лет

Первый взнос

от 30.01 %

Описание программы

614990, Пермский край, г. Пермь, ул. Петропавловская, 54
тел. (342) 235-15-05

Металлинвестбанк (семейная ипотека)

Ставка

5.9 %

Платеж
305 288 ₽/мес

Условия кредитования

Ставка

5.9 %

Срок кредита

до 30 лет

Первый взнос

от 20.01 %

Описание программы

Адрес: 614015 г. Пермь, ул. Ленина, 96.
Телефон: (342) 211-50-19

Ваш персональный менеджер Соколова Гульфия Амировна тел. +7 (982) 456-65-57, почта gsokolova@metib.ru

ПСБ - Промсвязьбанк (семейная ипотека)

Ставка

5.9 %

Платеж
305 288 ₽/мес

Условия кредитования

Ставка

5.9 %

Срок кредита

до 30 лет

Первый взнос

от 30.01 %

Описание программы

Офис банка в Перми: ТРЦ Колизей: г. Пермь, ул Ленина, 58, телефоны +7 (495) 787 33 33, 8 800 333 03 03
Ваш менеджер г. Пермь: Наталья Фисун  +7 (908) 2444144, Светлана Онучина  +7(992) 2243770.

Льготная ипотека 6,35% 
Семейная ипотека 5%
Ипотека для ИТ-специалистов 5%

не оферта

ВТБ БАНК (Семейная ипотека)

Ставка

6 %

Платеж
308 589 ₽/мес

Условия кредитования

Ставка

6 %

Срок кредита

до 30 лет

Первый взнос

от 20.01 %

Описание программы

Спешим поделиться радостной НОВОСТЬЮ от Банка ВТБ!

Мы снижаем  % ставки по ипотеке с ГОС.ПОДДЕРЖКОЙ!!!

Срок действия: с 19.07.2023 по 15.09.2023 года

Колл-центр: 8 800 100-24-24, почта для заявок и вопросов: i_perm@vtb.ru


Клюква (семейная ипотека)

Ставка

6 %

Платеж
308 589 ₽/мес

Условия кредитования

Ставка

6 %

Срок кредита

до 25 лет

Первый взнос

от 20.01 %

Описание программы

Пермь, ул. Ленина 72а, контакт-центр 8 800 100 10 40

(342)207-58-21
(342)207-58-18
(342)207-58-28
(342)207-58-22

Сумма – до 6 млн
Первоначальный взнос – от 15%
Срок – до 25 лет

Совкомбанк (семейная ипотека)

Ставка

5.99 %

Платеж
308 258 ₽/мес

Условия кредитования

Ставка

5.99 %

Срок кредита

до 30 лет

Первый взнос

от 20.01 %

Описание программы

ПАО "Совкомбанк"  г. Пермь ул Ленина 59
Ваш персональный кредитный менеджер:
Микрюков Иван +79124876549
mikryukovim@sovcombank.ru


 * Возможно рассмотрение по двум документам
 * Ипотечное кредитование самозянятых и ИП - без предоставления налоговых деклараций, достаточно выписки с дебетовой карты или расчетного счета за 6 месяцев
* Ипотечное кредитование до 85 лет при наличии созаемщика не страше 70 лет,пенсия , как единственный источник дохода у клиента при сумме свыше 15 т.р.

Альфа-Банк (семейная ипотека)

Ставка

6 %

Платеж
308 589 ₽/мес

Условия кредитования

Ставка

6 %

Срок кредита

до 30 лет

Первый взнос

от 30 %

Описание программы

Центр ипотечного кредитования в г. Пермь, ул. Пермская, 17
Менеджер по работе с партнерами Дубровин Дмитрий 8-909-730-64-40

Отправьте заявку на ипотеку онлайн: https://alfabank.ru/get-money/mortgage/
Не оферта.

Металлинвестбанк (IT ипотека)

Ставка

5.99 %

Платеж
308 258 ₽/мес

Условия кредитования

Ставка

5.99 %

Срок кредита

до 30 лет

Первый взнос

от 20.01 %

Описание программы

Адрес: 614015 г. Пермь, ул. Ленина, 96.
Телефон: (342) 211-50-19

Ваш персональный менеджер Соколова Гульфия Амировна тел. +7 (982) 456-65-57, почта gsokolova@metib.ru

ПСБ - Промсвязьбанк (IT ипотека)

Ставка

6 %

Платеж
308 589 ₽/мес

Условия кредитования

Ставка

6 %

Срок кредита

до 30 лет

Первый взнос

от 20 %

Описание программы

Офис банка в Перми: ТРЦ Колизей: г. Пермь, ул Ленина, 58, телефоны +7 (495) 787 33 33, 8 800 333 03 03
Ваш менеджер г. Пермь: Наталья Фисун  +7 (908) 2444144, Светлана Онучина  +7(992) 2243770.

Льготная ипотека 6,35% 
Семейная ипотека 5%
Ипотека для ИТ-специалистов 5%

не оферта

ВТБ БАНК (IT ипотека)

Ставка

6 %

Платеж
308 589 ₽/мес

Условия кредитования

Ставка

6 %

Срок кредита

до 30 лет

Первый взнос

от 20.01 %

Описание программы

Спешим поделиться радостной НОВОСТЬЮ от Банка ВТБ!

Мы снижаем  % ставки по ипотеке с ГОС.ПОДДЕРЖКОЙ!!!

Срок действия: с 19.07.2023 по 15.09.2023 года

Колл-центр: 8 800 100-24-24, почта для заявок и вопросов: i_perm@vtb.ru


Клюква (IT ипотека)

Ставка

6 %

Платеж
308 589 ₽/мес

Условия кредитования

Ставка

6 %

Срок кредита

до 25 лет

Первый взнос

от 20.01 %

Описание программы

Пермь, ул. Ленина 72а, контакт-центр 8 800 100 10 40

(342)207-58-21
(342)207-58-18
(342)207-58-28
(342)207-58-22

Сумма – до 6 млн
Первоначальный взнос – от 15%
Срок – до 25 лет

Совкомбанк (IT ипотека)

Ставка

6 %

Платеж
308 589 ₽/мес

Условия кредитования

Ставка

6 %

Срок кредита

до 30 лет

Первый взнос

от 20.01 %

Описание программы

ПАО "Совкомбанк"  г. Пермь ул Ленина 59
Ваш персональный кредитный менеджер:
Микрюков Иван +79124876549
mikryukovim@sovcombank.ru


 * Возможно рассмотрение по двум документам
 * Ипотечное кредитование самозянятых и ИП - без предоставления налоговых деклараций, достаточно выписки с дебетовой карты или расчетного счета за 6 месяцев
* Ипотечное кредитование до 85 лет при наличии созаемщика не страше 70 лет,пенсия , как единственный источник дохода у клиента при сумме свыше 15 т.р.

Альфа-Банк (IT ипотека)

Ставка

6 %

Платеж
308 589 ₽/мес

Условия кредитования

Ставка

6 %

Срок кредита

до 30 лет

Первый взнос

от 30 %

Описание программы

Центр ипотечного кредитования в г. Пермь, ул. Пермская, 17
Менеджер по работе с партнерами Дубровин Дмитрий 8-909-730-64-40

Отправьте заявку на ипотеку онлайн: https://alfabank.ru/get-money/mortgage/
Не оферта.

Металлинвестбанк

Ставка

27.2 %

Платеж
1 167 020 ₽/мес

Условия кредитования

Ставка

27.2 %

Срок кредита

до 30 лет

Первый взнос

от 15.01 %

Описание программы

Адрес: 614015 г. Пермь, ул. Ленина, 96.
Телефон: (342) 211-50-19

Ваш персональный менеджер Соколова Гульфия Амировна тел. +7 (982) 456-65-57, почта gsokolova@metib.ru

ПСБ - Промсвязьбанк

Ставка

25.6 %

Платеж
1 098 578 ₽/мес

Условия кредитования

Ставка

25.6 %

Срок кредита

до 30 лет

Первый взнос

от 40.01 %

Описание программы

Офис банка в Перми: ТРЦ Колизей: г. Пермь, ул Ленина, 58, телефоны +7 (495) 787 33 33, 8 800 333 03 03
Ваш менеджер г. Пермь: Наталья Фисун  +7 (908) 2444144, Светлана Онучина  +7(992) 2243770.

Льготная ипотека 6,35% 
Семейная ипотека 5%
Ипотека для ИТ-специалистов 5%

не оферта

ВТБ БАНК

Ставка

28.8 %

Платеж
1 235 523 ₽/мес

Условия кредитования

Ставка

28.8 %

Срок кредита

до 30 лет

Первый взнос

от 30.01 %

Описание программы

Спешим поделиться радостной НОВОСТЬЮ от Банка ВТБ!

Мы снижаем  % ставки по ипотеке с ГОС.ПОДДЕРЖКОЙ!!!

Срок действия: с 19.07.2023 по 15.09.2023 года

Колл-центр: 8 800 100-24-24, почта для заявок и вопросов: i_perm@vtb.ru


Сбербанк (Семейная ипотека)

Ставка

6 %

Платеж
308 589 ₽/мес

Условия кредитования

Ставка

6 %

Срок кредита

до 25 лет

Первый взнос

от 20.1 %

Описание программы

Ваш персональный менеджер -  Анна Ковалёва  8(919) 4538822   Kovaleva.A.Serge@sberbank.ru  старший менеджер по продаже жилищных кредитов

Она поможет Вам подобрать выгодные условия кредитования и оформить ипотечную заявку. Отправьте заявку на ипотеку онлайн: https://www.sberbank.ru/ru/person/credits/homenew




Клюква

Ставка

29 %

Платеж
1 244 089 ₽/мес

Условия кредитования

Ставка

29 %

Срок кредита

до 25 лет

Первый взнос

от 30.01 %

Описание программы

Пермь, ул. Ленина 72а, контакт-центр 8 800 100 10 40

(342)207-58-21
(342)207-58-18
(342)207-58-28
(342)207-58-22

Сумма – до 6 млн
Первоначальный взнос – от 15%
Срок – до 25 лет

Сбербанк

Ставка

30.7 %

Платеж
1 316 923 ₽/мес

Условия кредитования

Ставка

30.7 %

Срок кредита

до 30 лет

Первый взнос

от 15.01 %

Описание программы

Ваш персональный менеджер -  Анна Ковалёва  8(919) 4538822   Kovaleva.A.Serge@sberbank.ru  старший менеджер по продаже жилищных кредитов

Она поможет Вам подобрать выгодные условия кредитования и оформить ипотечную заявку. Отправьте заявку на ипотеку онлайн: https://www.sberbank.ru/ru/person/credits/homenew




Совкомбанк

Ставка

14.99 %

Платеж
650 398 ₽/мес

Условия кредитования

Ставка

14.99 %

Срок кредита

до 30 лет

Первый взнос

от 50.01 %

Описание программы

ПАО "Совкомбанк"  г. Пермь ул Ленина 59
Ваш персональный кредитный менеджер:
Микрюков Иван +79124876549
mikryukovim@sovcombank.ru


 * Возможно рассмотрение по двум документам
 * Ипотечное кредитование самозянятых и ИП - без предоставления налоговых деклараций, достаточно выписки с дебетовой карты или расчетного счета за 6 месяцев
* Ипотечное кредитование до 85 лет при наличии созаемщика не страше 70 лет,пенсия , как единственный источник дохода у клиента при сумме свыше 15 т.р.

Альфа-Банк

Ставка

29.49 %

Платеж
1 265 079 ₽/мес

Условия кредитования

Ставка

29.49 %

Срок кредита

до 30 лет

Первый взнос

от 50 %

Описание программы

Центр ипотечного кредитования в г. Пермь, ул. Пермская, 17
Менеджер по работе с партнерами Дубровин Дмитрий 8-909-730-64-40

Отправьте заявку на ипотеку онлайн: https://alfabank.ru/get-money/mortgage/
Не оферта.

Не только коммерческие помещения

Машиноместа

Кроме того, подземные автопарковки в жилых комплексах обычно имеют удобные подъезды, позволяющие водителям легко и безопасно заезжать и выезжать с парковки

Выбрать

Запишитесь на встречу в офис продаж

Вы можете записаться на экскурсию, а также приобрести квартиру без комиссии у наших менеджеров